0086

상담문의
주택홍보관 대표번호
상담 / 공급가 / 홍보관 위치
(아래 번호를 터치하시면 주택홍보관으로 자동 연결 됩니다)
1644-9804
1644-9804
편안하고 깊이 있는 상담을 위하여 주택홍보관 방문은 사전예약을 통해서만 가능하오니 양해 부탁드립니다.
(위 번호를 터치하시면 주택홍보관으로 자동 연결 됩니다)
서울시 영등포구 영등포동1가
봉쥬르 오피스텔

ㅣ신길역 봉쥬르 오피스텔
◆ 설계개요


◆ 위치도
당 사업지는 영등포구 영등포동1가 31-3호에 위치하고 있으며
여의도와 인접해 있고 , 올림픽 대로와 지하철 1호선, 5호선이 지나가고 있음

당 사업지에서 도보 2분거리에 지하철 1호선, 5호선 신길역이 위치하고 있으며
주변에 오피스텔, 다세대주택 등이 많음

◆ 조감도

◆ 동별 및 층별 면적표

◆ 분양면적표

◆ 3~6F 오피스텔

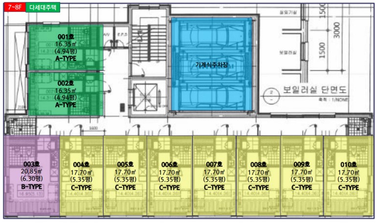
◆ 7~8F 다세대주택


ㅣ사업환경분석
◆ 입지분석
당 사업지는 지하철 1,5호선 더블역세권의 사통팔달 교통인프라와
쇼핑, 문화, 녹지인프라를 갖추고 정치, 금융, 미디어 1번지 여의도의 풍부한 배후수요를 갖춘 최적의 입지

당 사업지는 서남부권 중심입지로 서울 주요 업무 권역 40분내로 진입 가능

◆ 개발환경 및 호재
2030 영등포 뉴타운 정부 구상 개발전략


해당 사업지는 2030 영등포 뉴타운 재정비촉진지구 확정구역 외부에 위치 하지만 동일 지구에 속하고 전략적으로 동등한 평가가치를 지니고 있으며 정부지정 개발제한에서 보다 자유로운 이점을 취할 수 있다.
영등포 뉴타운, 신길뉴타운

교통환경
트리플 초역세권

◆ 시장환경분석


상담문의
주택홍보관 대표번호
상담 / 공급가 / 홍보관 위치
(아래 번호를 터치하시면 주택홍보관으로 자동 연결 됩니다)
1644-9804
1644-9804
편안하고 깊이 있는 상담을 위하여 주택홍보관 방문은 사전예약을 통해서만 가능하오니 양해 부탁드립니다.
(위 번호를 터치하시면 주택홍보관으로 자동 연결 됩니다)
'분양TALK! > 오피스텔 호텔 생숙' 카테고리의 다른 글
| 구리 유탑 유블레스 시티 모델하우스 분양가 구리역 투룸 아파트형 오피스텔 분양 홍보관 사무실 (0) | 2020.10.27 |
|---|---|
| 파주 운정 힐데스하임 케멜라스 모델하우스 분양가 운정신도시 오피스텔 분양 홍보관 대표 홈페이지 (0) | 2020.10.26 |
| 인천 청라 현대 썬앤빌 에코스타 모델하우스 분양가 청라국제도시역 오피스텔 상가 분양 홍보관 (0) | 2020.10.26 |
| 동묘역 시티플러스 동대문 모델하우스 분양가 동대문 숭인동 오피스텔 분양 홍보관 (0) | 2020.10.26 |
| 장안동 현대 썬앤빌 시그니처 모델하우스 분양가 동대문구 장안 장한평역 오피스텔 분양 홍보관 (0) | 2020.10.26 |